在动力电池的3个主要类型中,圆柱电芯虽然不是占有市场份额最大的,但由于其在消费品市场的广泛用途,使得它的商业化标准化却是最为成熟的。其工艺经过多年的沉淀,稳定且一致性最好。三元材料的圆柱电芯,能量密度能做到210~250Wh/kg。大规模标准化的电芯,使得模组也具备了自动化生产的前提。
圆柱电池体积小,非常适用于空间不规则的电池包箱体内,可以充分利用边角空间。虽然当前18650面临被21700替代的问题,但小规模形状复杂动力要求不高成本又比较敏感的车辆上,18650还是会在一段时间内保有自己的一方天地的。
模组基本结构
在圆柱电芯模组设计中,模组结构是多种多样的,主要根据客户和车型的需求来确定,最终导致模组的制造工艺也不一样。模组一般由电芯、上下支架、汇流排(有的也称连接片)、采样线束、绝缘板等主要部件组成,如下图所示。

结构设计
圆柱电池模组的结构设计,其目的是将多个圆柱电池固定在指定位置上,保证合理振动冲击条件下,不要发生过大位移。电芯位置由电芯支架确定,如果遇到极端情况,电芯支架可能会变形,为了保持电芯之间的距离,一般都会单独设计耐高温、质量小的电信间距保持件。下图中江淮iEV5模组中间的黑色部分应该就是这个类型的设计意图。

圆柱电池模组内部,并联比较容易实现,只要一块母排将电芯的一极接入即可,但要做到电流密度分布均匀,热场均匀,则是考验工程师水平的地方。一般都尽量设计成较为对称的结构,但模组进出线位置附近总归与其他电芯均匀布置的位置不太一样,因此是设计仿真的关键点。像特斯拉那样,做出奇异形状的并联母排设计,应该是经过热量和电流分布测算之后的结果(特斯拉模组在文章后半部分里找)。
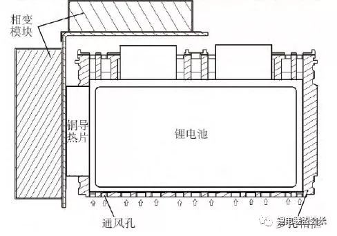
动力电池模组散热方式介绍
当前被探讨比较多的就是液冷和相变材料冷却。圆柱电芯液冷模组的典型就是特斯拉,在后面的实例中将做介绍。单纯的液冷系统是将导热良好的器件紧贴电芯放置,尽可能均匀且高效的将电芯工作过程中产生的多余热量带走。
液冷可以像特斯拉那样完全独立运行,也可以与其他冷却方式相结合。其中的一个重要形式就是与导热硅胶结合,如下图所示。导热硅胶可以获得比金属接触金属更加紧密的贴合,进而获得更好的传热性能。


电芯工作时产生的热量通过导热硅胶垫片传递至液冷管,由冷却液热胀冷缩自由循环流动将热量带走,使整个电池包的温度均衡统一,冷却液强大的比热容吸收电芯工作时产生的热量,使整个电池包在安全温度内运作。导热硅胶良好的绝缘性能和高回弹韧性,能有效避免电芯之间的震动摩擦破损问题,和电芯之间的短路隐患,是水冷方案的最佳辅助材料。
此液冷方案采用S型导热铝管、在铝管上贴附异型导热硅胶带(在导热硅胶带与电芯接触面增加凸起条纹),让电芯与导热管之间接触面更大,导热效果和减震效果更好。
圆柱形电池的电池模组PCM散热结构,相变材料的应用,可以与液冷配合,也可以独立使用。独立应用则可以有多种排列方式。可以将PCM板材贴合在电池模组外部,辅助散热,如下图所示。据该实验结果显示,相变材料的存在也可以起到一定冷却作用。

效率最高的方式,自然是电芯与PCM接触面积最大的方式,范例如下。

相变材料用于热管理电池组,首先计算出所需PCM的质量,再根据电池的形状确定相变材料基体的几何尺寸,制作相变材料基体,并在基体上均匀挖出与单体电池尺寸相同的洞,洞的数量由电池模组中能够容纳的单体电池数量决定。
这个形式的相变材料的应用在客观上阻止了热失控单体能量的传播,被认为是一种比较理想的热管理形式。
动力电池应用场景对相变材料的基本要求:
相变温度低,需要适应锂电池的最佳工作温度区间15℃-35℃;
材料相变温度小范围内可以调节,不同类型电芯的最佳工作温度区间并不完全一致;
材料定型形态,相变前后,最好不要出现液态气态相;
材料潜热大,则系统恒温能力强;
传热系数要高,才能保持温度均匀;
材料绝缘性好,避免高压系统出现绝缘漏电风险。
相变材料质量密度低,减小对电池包能量密度的影响。
即使满足了上述条件,相变材料的应用依然存在局限性。当环境极其恶劣的时候,比如温度过高。相变材料吸收热量的能力是有限的,当相变完成时,系统温度自然上升。而当温度过低且长时间过低,车辆的冷启动必须吸收外部能量加热才行。
圆柱电芯模组制造

图2-2圆柱电芯模组结构示意图
1)电芯分选,模组工艺设计时,需要考虑模组电性能的一致性,确保Pack整体性能达到或满足整车的要求。为了保证模组电性能的一致性,需要对电芯来料进行严格的要求。电芯厂家一般在电芯出货前,也会按电芯的电压、内阻和容量规格进行分组,但是电芯厂家与Pack厂家的最终需求是不同的,考虑到制造工艺、成本、电芯性能等因素,Pack厂家一般会按自己的标准重新对电芯进行分选。电芯分选需要考虑分选标准的问题,标准制定得合理,会减少剩余闲置的电芯,提升生产效率,降低生产成本。在实际生产过程中,还需要对电芯的外观进行检查,比如检查电芯有无绝缘膜破损、绝缘膜起翘、电芯漏液、正负极端面污渍等不良品。

典型圆柱电芯模组工艺流程图
2)电芯入下支架,电芯入下支架是指把电芯插入下支架的电芯定位孔中。难点在于电芯与下支架孔之间的配合公差,孔太大,方便电芯插入,但是电芯固定不好,影响焊接效果;孔太小,电芯插入下支架定位孔比较困难,严重的可能导致电芯插不进去,影响生产效率。为了便于电芯插入,又能固定好电芯,可以把下支架孔前端开成喇叭口。

下支架开喇叭口示意图
3)电芯极性判断,电芯极性判断是指检查电芯的极性是否符合文件要求,属于安全检查。假如没有极性检查,而电芯极性又装反了,在装入第二面的汇流排时模组就会产生短路,导致产品毁坏,严重的可能导致人员受伤。
4)盖上支架,盖上支架是指把上支架盖到电芯上,并把电芯固定在支架内。一般情况下,盖上支架比电芯入下支架困难,一是与圆柱电芯的生产工艺有关,工艺里面有个滚槽工序,假如控制不好,会导致电芯尺寸的一致性差,影响盖上支架,严重的会盖不上去;二是电芯与下支架固定不好,导致电芯有一定的歪斜,导致上支架不好盖或者盖不上。
5)模组间距检测,模组间距检测是指检测电芯极柱端面与支架表面的间距检测,目的是检查电芯极柱端面与支架的配合程度,用于判断电芯是否固定到位,为是否满足焊提前判断是否满足焊接条件。
6)清洗,等离子清洗是一种干法清洗,主要是依靠等离子中活性离子的“活化作用”达到去除物体表面污渍的目的。这种方式可以有效地去除电芯极柱端面的污物、粉尘等,为电阻焊接提前做准备,以减少焊接的不良品。
7)汇流排安装,汇流排安装是指把汇流排安装固定到模组上,以便电阻点焊。设计时需要考虑汇流排与电芯的位置精度,特别是定位基准的问题,目的是使汇流排位置处于电芯极柱面的中心,便于焊接。在进行上下支架设计时,要考虑对汇流排的隔离;假如不好做隔离设计,在工序设计时需要考虑增加防短路工装的使用,可以避免在异常情况下发生短路。
8)电阻焊接,电阻焊接是指通过电阻焊的方式把汇流排与电芯极柱面熔接在一起。目前国内一般采用电阻点焊,在进行电阻点焊工艺设计时,需要考虑以下4点:
(1)汇流排的材质、结构和厚度;
(2)电极(也称焊针)的材质、形状、前端直径和修磨频次;
(3)工艺参数优化,如焊接电流、焊接电压、焊接时间、加压力等;
(4)焊接面的清洁度和平整度。
在实际生产中,失效因素非常多,需要技术人员根据实际情况来分析处理。
9)焊接检查,在电阻焊接过程中,设备一般对焊接的参数都有监控,假如监测到参数异常,设备都会自动报警。由于影响焊接质量的因素很多,只通过参数监测来判断焊接失效,目前结果还不是特别理想。在实际的生产控制中,一般还会通过人工检查外观和人工挑拨汇流排的方式,再次检查和确认焊接效果。
10)打胶,胶水在模组应用上,一般有两种用途:一种用途是固定电芯,主要强调胶水的黏接力、抗剪强度、耐老化、寿命等性能指标;另一种用途是把电芯和模组的热量通过导热胶传递出去,主要强调胶水的导热系数、耐老化、电气绝缘性、阻燃性等性能指标。由于胶水的用途不同,胶水的性能和配方也不同,实现打胶工艺的方法和设备就不同。在胶水选择和打胶工艺方面,需要考虑以下3点:
a胶水的安全环保性能:尽量选择无毒无异味的胶水,不但可以保护操作者,也可以保护使用者,还能更好地保护环境,也是新能源发展的目标。
b胶水的表干时间:为了提高生产效率,一般希望胶水的表干时间越短越好。在实际生产过程中,假如胶水表干时间过短,由于待料、设备异常等因素,会导致胶水的大量浪费;也可能由于操作员处理不及时,因胶水固化时间短而导致设备堵塞,严重时导致停拉线。按经验,尽量把表干时间控制到15~30min比较合理。
c胶水的用量:胶水用量主要由产品和工艺来确定,目的是满足产品的要求。目前常用打胶工艺有点胶、涂胶、喷胶和灌胶,每种工艺所需要的设备也是不同的。在打胶时需要注意胶量的控制,避免产生溢胶而影响其他工序。
11)盖绝缘板,盖绝缘板是指把模组的汇流排进行绝缘保护。在工艺设计时,需要注意绝缘板不能高出支架的上边缘,同时绝缘板与支架边框之间的间隙最好小于1mm。
12)模组EOL测试,EOL测试(endofline)(一般也称下线测试)是生产过程中质量控制的关键环节,主要针对模组的特殊特性进行测试,主要测试项目有:
a绝缘耐压测试;
b内阻测试;
c电压采样测试;
d尺寸检测;
e外观检查。
测试项目一般根据客户和产品的要求来增减,其中安全检测项目是必不可少的。
13)转入Pack组装或入库,经EOL测试合格的模组按规定转入Pack组装工序或入库,转运过程中需要对模组进行绝缘保护和防止模组跌落。
通过圆柱电芯模组生产工艺流程的介绍,针对不同的客户和产品,工艺流程的设计是不同的,目的都是为了快速地响应客户和市场的需求。
在进行模组工艺流程设计时,一般需要考虑以下几点:
1)安全性:产品安全和安全生产;
2)电性能:容量、电压、内阻、性能的一致性;
3)生产节拍:节拍越高,表示产能越大;
4)尺寸:外形尺寸和固定尺寸;
5)工艺路线:指关键工艺的选择和确定;
6)成本:产品设计和工艺设计时都需要考虑的要素。
通过上面的分析,仅仅把模组工艺流程设计好是不够的,还需要有完善的生产体系来支撑,才能制造出让客户满意的产品。
作为一名研发设计人员,如果能够详细了解所在体系的生产能力,将事半功倍。
知名车型动力电池模组案例
TeslaModelS,使用圆柱形18650锂电池的车型,首先想到的当然是风头无两的Tesla,虽然最近Tesla过得好像不太好。Roadster,ModelS,ModelX几款都是18650电池包驱动,到了Model3升级到了21700。
以ModelS为例,一起看看18650模组,可能大家在网上看的不少,这里也是整理自网上的资料,就大概说一下。
电池包

模组

上面第一幅图中标示的红线,是一个模组内6只小模组的分界线,分界线上安装有隔板将6个部分分割开来,避免其中一个部分发生热失控时,其余部分过快的受到波及,造成短时间剧烈的发热甚至爆炸,隔板如下图所示。

ModelS85一共有16块电池组,每个模组包含有444节电池,每74节并联成一组,整块电池板由6组电池串联而成。可以算出在这款TeslaModelS85车型上一共有7104节18650锂电。
每颗电芯都有一极通过保险丝与并联母排连接,如下图中纤细的银线就是每颗电芯的保险丝。

没有看到模组内部每个小模组之间的连接方式。

每一只模组侧面安装有模组控制器线路板,如下图。

线路板特写

下面一幅图中显示的电池包爆炸图,其中棕黄色部分的显示了水冷管道的整体形状。据说,网上流传的被拆解了的特斯拉电池包,都是只有水冷管道,而冷却系统中并没有泵的存在。冷却液依靠热胀冷缩在小范围内流动。如果初始状态电芯一致性非常好,电池组内部的热量不均衡差异很小,只在小局部内相互均温就可以达到消除温差的作用。但如果需要启动加热功能,则这种局部流动就无法达成快速大量传热的目的了。

江淮iEV5,国内使用圆柱电池的车型不多,比较著名的应该算江淮iEV5,盗图来看一看。电池包总体32并92串,共2944颗电芯,合计23kWh电量。冷却方式为主动风冷。
电池包整体

模组
力神2200mAh三元电芯,一个模组32颗电芯全部并联。没有找到显示电气连接和信号采集线的图片。

每颗电芯上的熔丝结构与特斯拉不同。





